CLINIQUE LA PHOCEANNE MARSEILLE
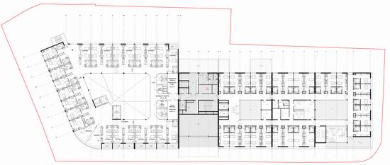
L e projet uni deux programmes qui se ré partissent de part et d’autre d’un bâtiment central intégrant des locaux mutualisés. Il s’organise en s’étirant le long de la grande longueur du terrain. Une rampe à faible pente permet de gérer la légère déclivité longitudinale et d’amener les voitures devant le hall central. Un cheminement parallèle est prévu pour l’accessibilité PMR. Cette organisation révèle ici des « lignes horizontales qui dialoguent avec le bâtiment principal de l’hôpital qui lui fait face ». Suivant la pente, les volumes étirés d’Ouest en Est offre à la vue des volumes différents dans leurs gabarits, ces derniers tenant compte des différences de programmes entre les deux maître d’ouvrage. De ce fait, un niveau de rez de chaussée référent constitue sur la longueur un socle en retrait qui allège le bâtiment.
Livraison fin 2012
Surf HO : 11 000m2
M.O : PHOCEANNE/ ST MARTIN
MOe : CCD / BART
BET : GARCIA /LANGLOIS
Coût : 22 000 000 € HT









